A new Nile to Reefton

September 8, 2025
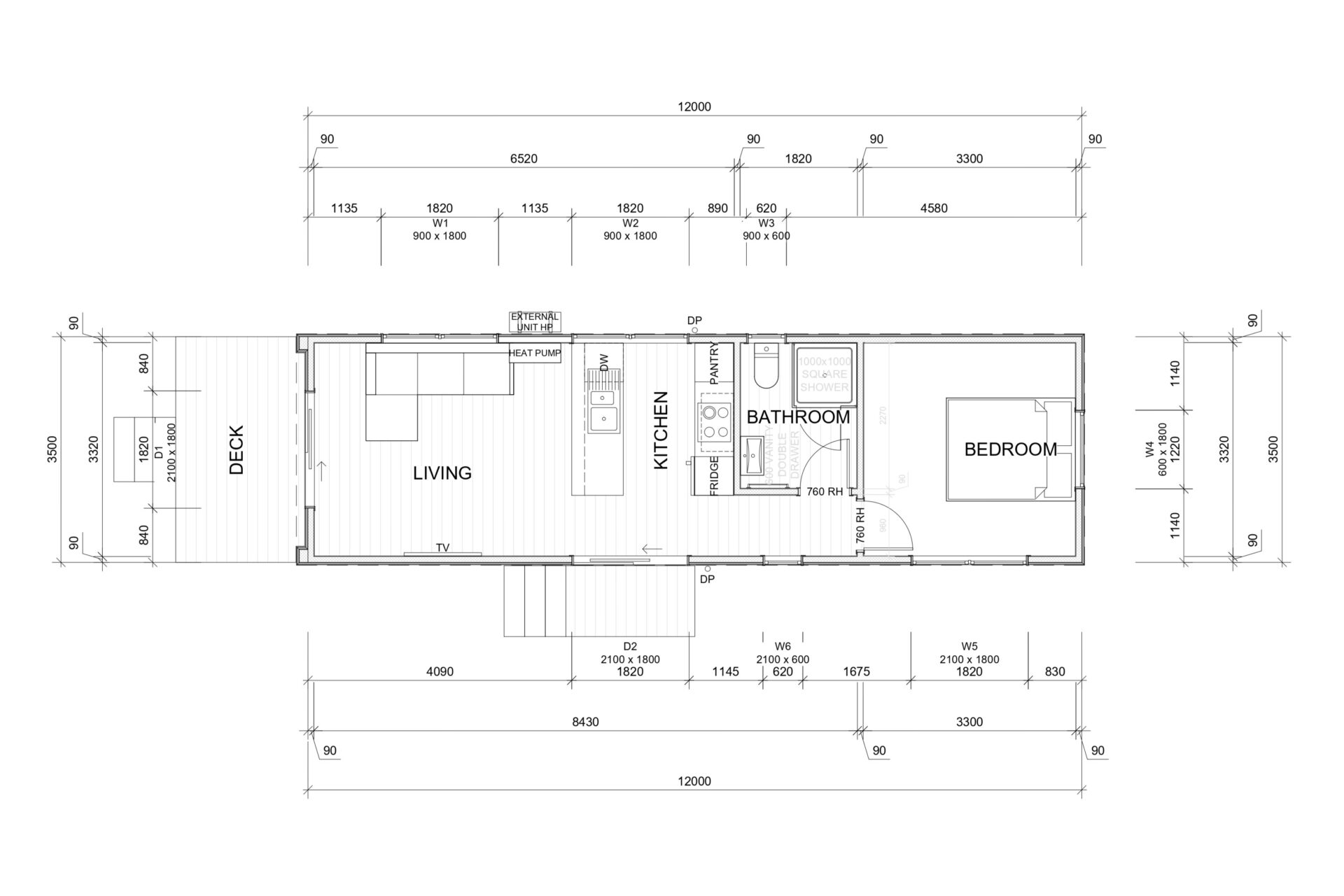
This weeks delivery is a 1 bedroom Nile to Reefton! 🤩 🏠
If you’re needing a small home, office, studio, hobby room, sleepout, staff or guest accommodation units, or a granny flat, this is a great option for you! The layout can be changed to suit how you want it. Click here to learn more about this design. https://southpeakhomes.co.nz/floor-plans/nile/ and get in touch to discuss your needs.