Nile

If you’re needing a new 1 bedroom home, office, studio, hobby room, sleepout, staff or guest accommodation units, or a granny flat, this is a great option for you! This is compatible with the new granny flat building consent exemptions.

From: $127,000 (incl GST)

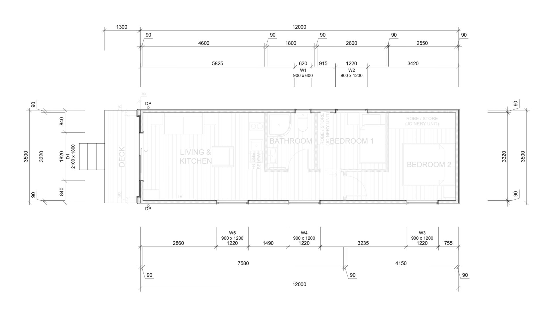
  • House Size 12m x 3.5m
  • Floor Area 42m²
  • 2 Bedrooms
  • 1 Bathroom
  • 1 Toilet

These minor dwellings come in a range of styles with mono & gable rooflines, end entry & side entry options and with or without a veranda (for end entry options only). They are constructed by licensed builders using the same materials as our homes & meet the NZ building code which makes them strong, warm, dry and fully insulated. They are fully finished to practical completion stage in our factory and can be transported to your site on a hiab truck.

Under the new building consent exemption for granny flats this home can be constructed without building consent if:
> A PIM report must be issued from council prior to starting
> The design is single story, stand alone and complies with the NZS 3604 Building Code
> Licensed Building Practitioners (LBPs) supervise or carry out the work
> Tradesmen producer statements and records of works are obtained and submitted to council
> Homeowners notify their local council before commencing and upon completion of building work
> The net floor area must be 70 square metres or less. Floor area means the overall internal dimensions measured between the finished internal faces of the external walls

The consent & compliance regulations may vary depending on the council in your area.

Price is for the empty building only ex yard, based on our standard plan & specifications & includes GST. Plus kitchen, bathroom, wardrobes, deck, steps, veranda, transport costs and all site related costs, subject to a PIM report, engineers penetrometer test, soil & liquefaction reports, zoning & local bylaw requirements, site & resource consents, wastewater & septic designs, water tanks & pumps, site surveying, site prep for truck access, piling, decks, steps, baseboards, service connections and any other associated compliance costs if required.

Delivery is subject to good truck access. Prices are subject to the final design, use and location. Images are artist impressions only & the landscaping is not included. Plans are subject to change. All website pricing is GST inclusive & subject to change at anytime.

Use the form below to enquire now & get a price!

Floor Plans

Exterior Renders

Interior Renders

Accommodation unit enquiry form

"*" indicates required fields

This field is for validation purposes and should be left unchanged.

Your Details