41c Hall Street, Cobden, Greymouth

Here’s a great option for a small family, retirees, staff or guest accommodation close to town & the beach! This is amazing value for a brand new 3 bedroom prefabricated home placed on this section that has plenty of benefits including a flat site for ease of construction & access, close to Greymouth town, the river & the beach. Its has a 6ft wooden fence around three sides, concrete driveway from the roadside, water, power, stormwater & fibre available at the boundary.

  • From $489,000
  • Land Area 517m²
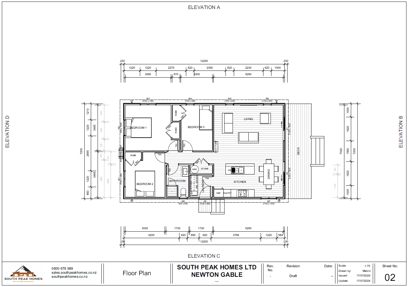
  • Floor Area 88m²
  • 3 Bedrooms
  • 1 Bathroom
  • 1 Toilet

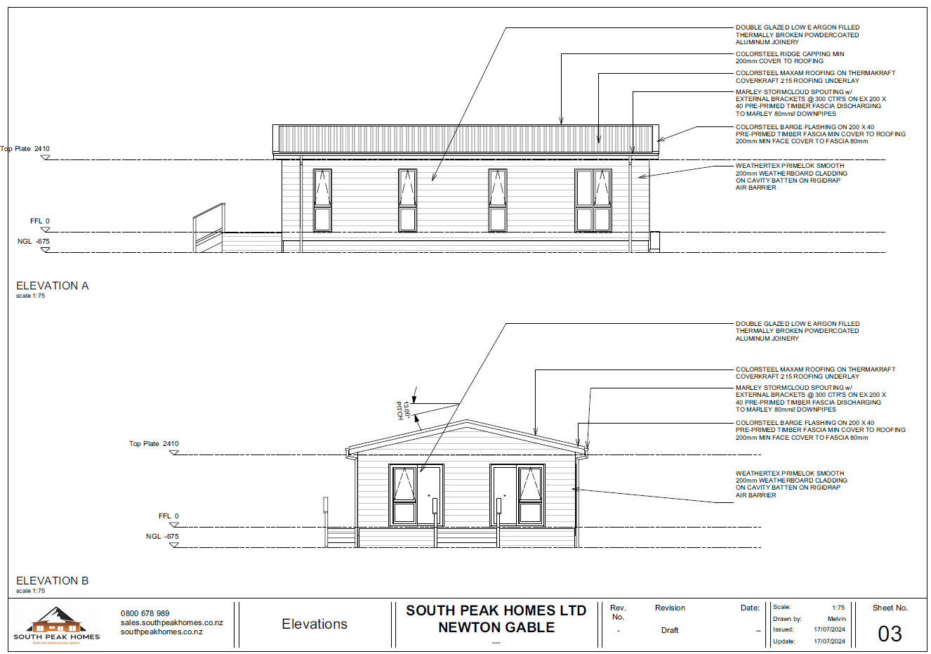
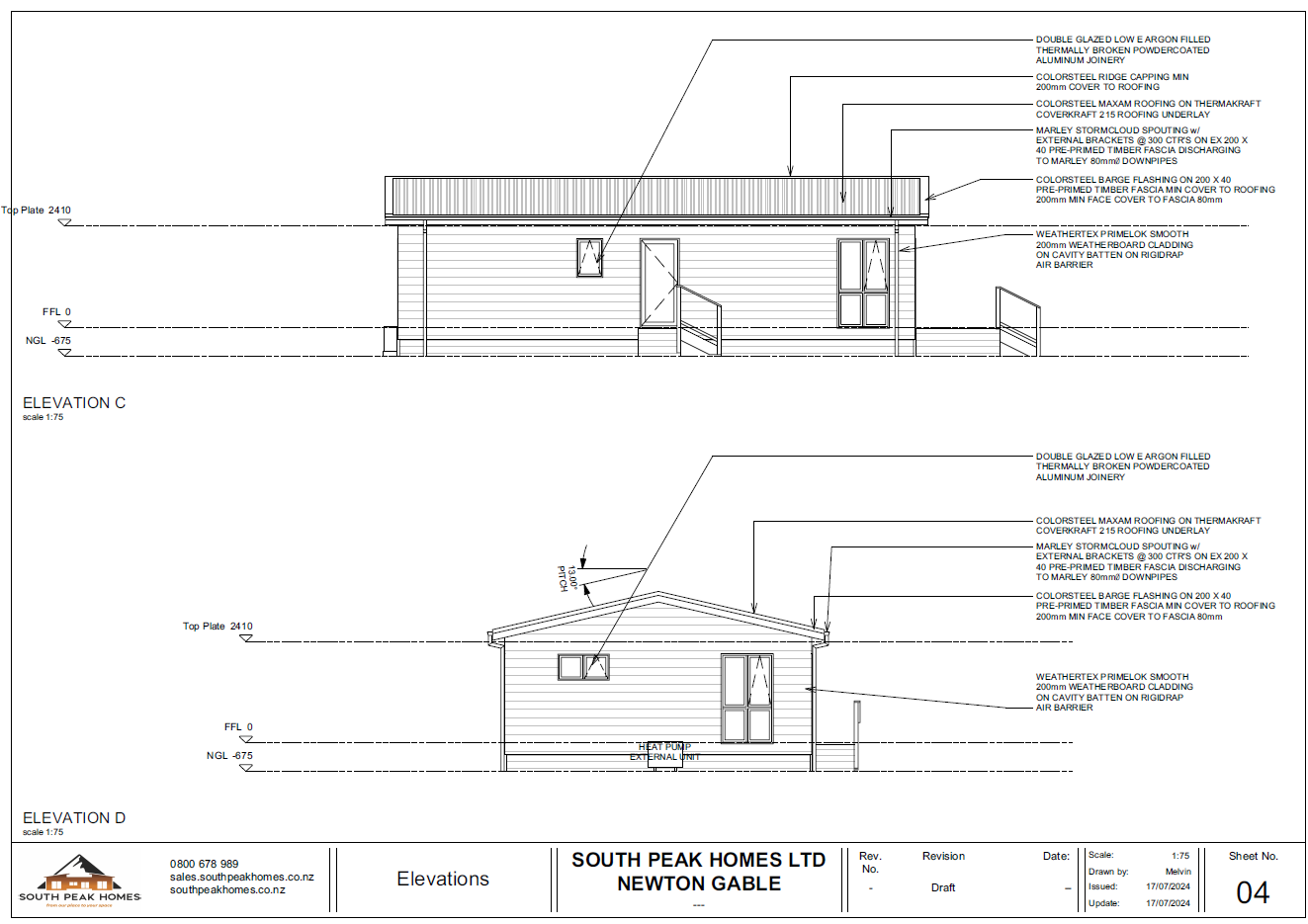
This is based on our Newton house plan with standard specifications, using 4.5m driven timber piles and a 675mm finished floor level. Pricing includes the house on piles, land, deck, steps, baseboards, service connections & code of compliance. Price includes GST. The house will be constructed off-site in our Westport factory & delivered to this site. Image shown is an artist’s impression only & the landscaping is not included. Other conditions may apply.

We are advertising this section on behalf of Tru-line Civil. The section sale & purchase agreement will be done directly between the client & Tru-line Civil and the house construction contract directly with South Peak Homes.

Get in touch to discuss this package & make it yours today!

House & land enquiry form

"*" indicates required fields

This field is for validation purposes and should be left unchanged.

Your Details