Victor.14

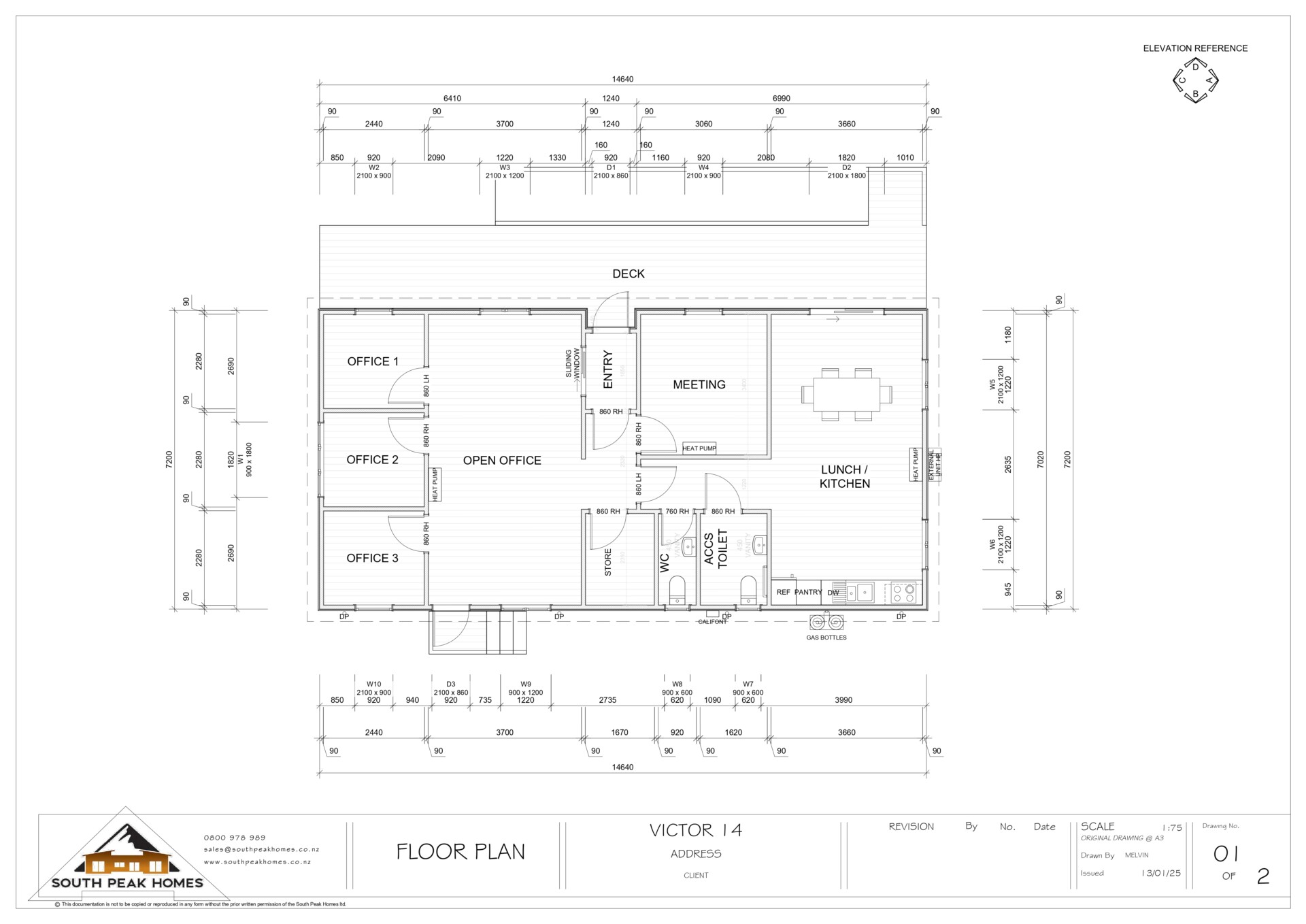
The Victor office block series is a modern, practical and economical option, designed to maximize usability and create a dynamic working environment. They feature 3 dedicated office spaces, an open office area, meeting room, store/server room, ACC toilet, and a lunchroom. These are constructed to a commercial specification with fire systems, emergency lighting, wheel chair access etc to meet council compliance.

  • Floor Area 106m²
  • 3 Office Spaces
  • 2 Toilets

At 7.2m wide x 14.64m long, the Victor.14 is a great choice for a team of 7-8 staff and has plenty of space to cater for most needs within a small to medium business. Verandahs, decking and siteworks can be arranged as required. Read on to learn more & enquire now!

(Note: Images are artist impressions only, cladding and finishes may differ to the final design.)

Office block enquiry form

"*" indicates required fields

This field is for validation purposes and should be left unchanged.

Your Details