Arrowsmith.21

This multi-unit accommodation package is a great option for up to 21 people and comprises of 1x Living Block & 1x Sleeping Quarters. The Living Block has a large open plan kitchen/dining area, a semi-detached lounge area, a large ablution area with 4x full bathrooms and a large laundry space. The Sleeping Quarters have 4x four-person bunk rooms and 1x five-person bunk room. Verandahs, decking and siteworks can be arranged as required.

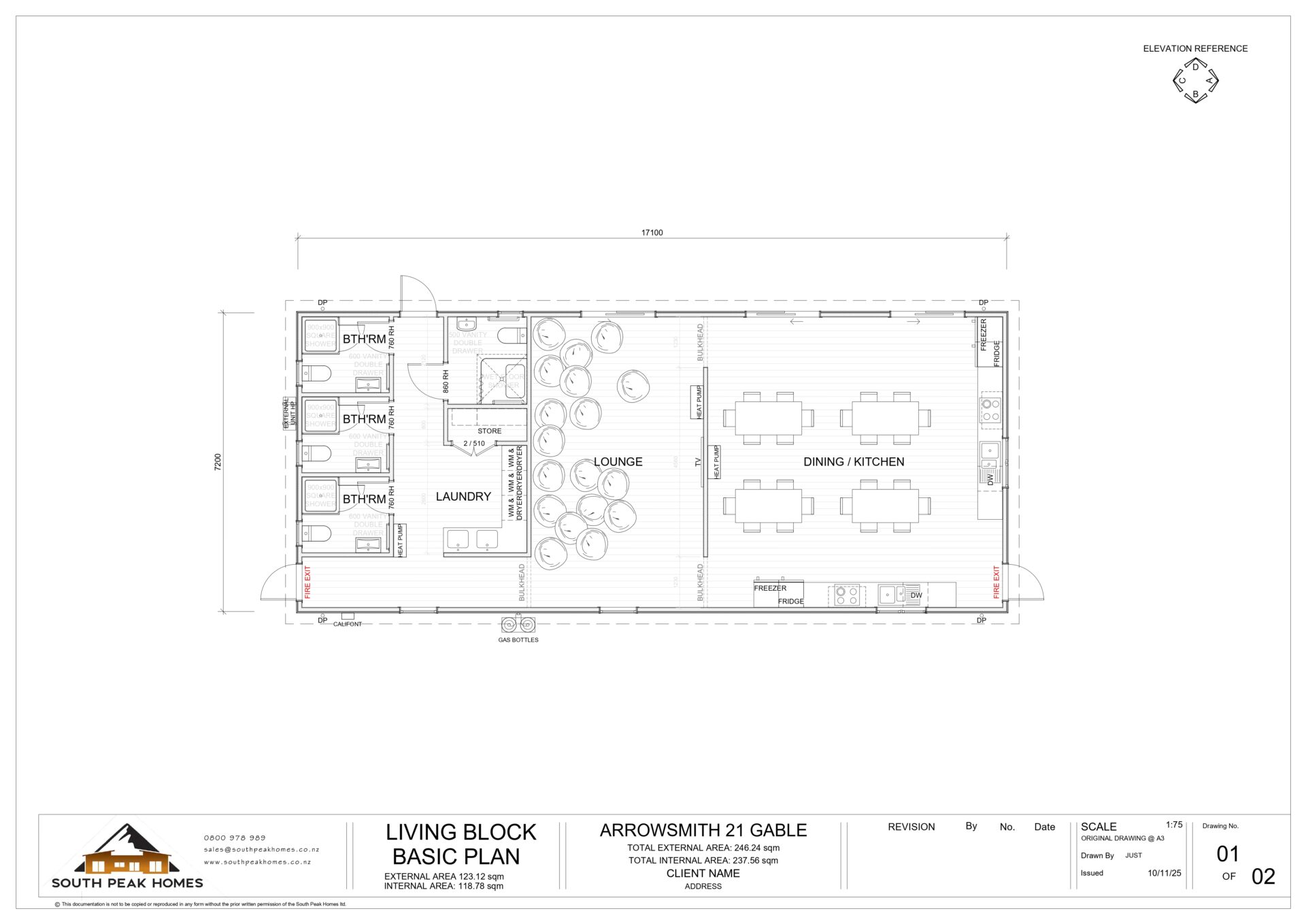
  • Floor Area 246m²
  • 21 Bedrooms
  • 4 Bathrooms
  • 4 Toilets

These units are designed to meet Worksafe New Zealand accommodation requirements, along with the Horticulture New Zealand survey and reports in mind. We’ve taken care of the appliances, furniture and storage spaces so you don’t have to. Simply supply linen and everyday items and your staff or guests will enjoy a warm, dry & healthy living experience, maximizing your return on investment. Read on to learn more & enquire now!

(Note: This is designed to meet WorkSafe legislation and horticultural NZ guidelines. Unit layout options to suit site. Images are artist impressions only, cladding and finishes may differ to the final design.)

Floorplans

Exterior Renders

Interior Renders

Accommodation unit enquiry form

"*" indicates required fields

This field is for validation purposes and should be left unchanged.

Your Details

South Island Locations Only