Bealey

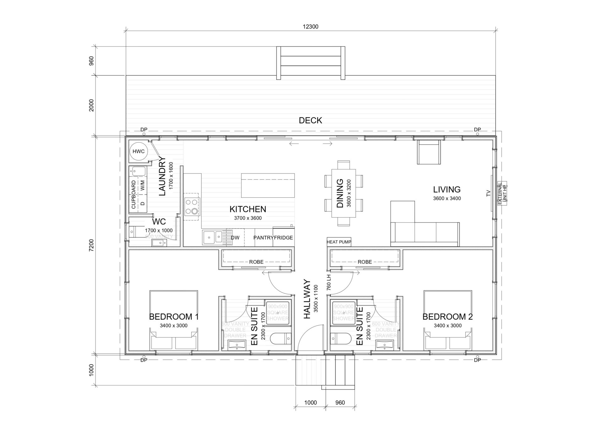
If you’re wanting a good rental investment with shared living facilities for accommodation purposes, then this is the plan for you. This home boasts two large bedrooms with ensuites, a laundry and large storage spaces.

From: $295,000 (incl GST)

  • House Size 12.3m x 7.2m
  • Floor Area 88m²
  • 2 Bedrooms
  • 2 Bathrooms
  • 3 Toilets

Price is for the house only ex yard, based on our standard plan & specifications & includes GST. Plus all site related costs & subject to a PIM report, engineers penetrometer test, soil & liquefaction reports, zoning & local bylaw requirements, site & resource consents, wastewater & septic designs, water tanks & pumps, site surveying, site prep for truck access, piling, decks, steps, baseboards, transport costs, service connections and any other associated compliance costs as required.

Images are artist impressions only & the landscaping is not included. This plan is available as a mono, gable or hip rooflines. We can add or remove wing walls & adjust the cladding to suit your style. Plans & pricing are subject to change at any time.

Use the form below to enquire now & get a price!

New home enquiry form

"*" indicates required fields

This field is for validation purposes and should be left unchanged.

Your Details